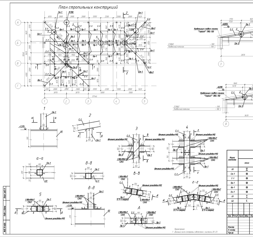
Гост на оформление чертежей марки км - найдено 30 изображений
Смотреть видео: Гост на оформление чертежей марки км
 
Найдено изображений: 30
 
	   
 
	   
 
	   
	   
	   
 
	   
	   
 
	   
 
 
	   
	   
 
	   
 
 
	   
 
	   
	   
 
 
	   
 
	  Смотрите также
- 2 3х 5 график
- Зоя бербер фото гусар
- Каменев юрий викторович фото
- Адель до и после похудения
- Квадрат и куб числа примеры
- Как должны выглядеть зубы фото
- Как снять дворники на патриоте
- Александр зацепин биография личная жизнь семья
- Жена юрия маликова фото в молодости
- Как снять боковые дефлекторы лада веста
- Календарь учителя 24 25 год башкортостан
- Зепюр брутян фото биография и личная жизнь
- Проект команды 2 класс
- Элорди встречается с кем сейчас
- Сложная форма будущего времени пример
- Марина казанкова фото в купальнике
- Примеры и задачи для первого класса
- Пример тем для проекта 10 класс
- Тюмень модульные дома под ключ цена проекты
- Пример дневника здоровья кому за 50 лет
